Apartamento totalmente renovado na zona histórica, com pátio privado, no coração de Loulé

Apartamento em Loule, Algarve Centro
Pdf do Imóvel

Resumo

Referência:
STY-T3
Região:
Algarve Centro
Localização:
Loule
Preço:
€ 460 000
Tipo de Imóvel:
Apartamento
Àrea Construida:
109 m2
Terreno:
30 m2
Quartos:
3
Casas de Banho:
3
Piscina:
No
Aeroporto:
18 km
Golfe:
10 km
Praia:
12 km

Descrição do Imóvel

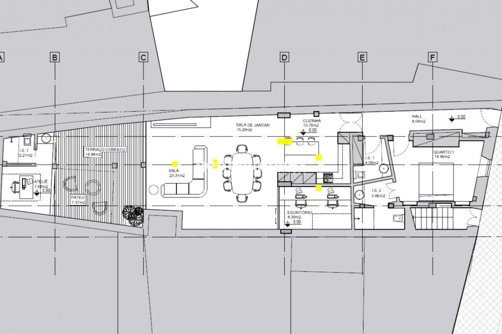
Este excecional apartamento térreo (T2 + 1) está a ser completamente remodelado no centro histórico da vibrante cidade mercantil de Loulé. A poucos passos do famoso mercado municipal, ruas sinuosas de calçada, cafés charmosos e uma variedade de lojas, Loulé é considerada o coração cultural do Algarve Central, animada, autêntica e atraente durante todo o ano. Atualmente em fase de renovação total, a propriedade combina acabamentos modernos com o caráter de uma moradia tradicional. A planta prevista inclui três quartos, cada um com a sua própria casa de banho e roupeiros embutidos de alta qualidade. Uma espaçosa sala de estar e jantar com uma cozinha aberta contemporânea cria um centro luminoso e acolhedor para a família e amigos. Um pátio interior privado amplia o espaço de estar ao ar livre e oferece um local tranquilo para desfrutar do sol do sul. Com a sua localização privilegiada e design cuidadoso, este apartamento é ideal como um refúgio de férias ou uma casa permanente confortável. A conclusão está prevista para breve, permitindo algumas opções de acabamentos individuais. Certificado de Energia B-.

  Pdf do Imóvel

Peça mais informações sobre este Imóvel


Imóveis Semelhantes